Populer 12 Gambar Instalasi Rumah Tingkat 2 Paling Modern Dan Nyaman, Skema Listrik
Poin pembahasan Populer 12 Gambar Instalasi Rumah Tingkat 2 Paling Modern Dan Nyaman, Skema Listrik adalah :
Populer 12 Gambar Instalasi Rumah Tingkat 2 Paling Modern Dan Nyaman, Skema Listrik. Begitu banyak informasi yang perlu diketahui sebelum melakukan skema listrik di rumah, mulai dari jenis, fungsi, sampai jaringan. ada tiga model skema listrik yang bisa dipakai sebagai dasar instalasi. Simak ulasan terkait skema listrik dengan artikel Populer 12 Gambar Instalasi Rumah Tingkat 2 Paling Modern Dan Nyaman, Skema Listrik berikut ini

Perhatikan Pembuatan Denah Instalasi Listrik Rumah Yang Aman Sumber : saibot-blog.blogspot.com

Gambar Instalasi Rumah Tingkat Blog Images Sumber : blogimagesxyz.blogspot.com

MENGGAMBAR RANCANGAN INSTALASI LISTRIK UNTUK RUMAH 2 Sumber : stc-overshare.blogspot.com

MENGGAMBAR RANCANGAN INSTALASI LISTRIK UNTUK RUMAH 2 Sumber : stc-overshare.blogspot.com

Plan Rumah 2 Tingkat Desainrumahid com Sumber : desainrumahid.com
perencanaan instalasi listrik rumah 2 lantai, gambar instalasi listrik rumah tinggal, perencanaan instalasi listrik gedung bertingkat, cara instalasi listrik rumah beton, gambar denah instalasi listrik rumah tinggal, instalasi listrik rumah mewah, diagram pengawatan instalasi listrik rumah, perencanaan instalasi listrik gedung bertingkat pdf,

Gambar Denah Rumah Dengan Visio Gontoh Sumber : gontoh.blogspot.com

Instalasi Rumah Lantai 2 Fiqri opinion Sumber : kitacirebon.blogspot.com

Denah Rumah 2 Lantai Hook 2020 Sumber : modelrumahmewah2017.blogspot.com

Instalasi Rumah Lantai 2 Fiqri opinion Sumber : kitacirebon.blogspot.com

Gambar Instalasi Rumah 2 Tingkat Rumamu di Sumber : rumamudi.blogspot.com

Gambar Instalasi Rumah 2 Tingkat Rumamu di Sumber : rumamudi.blogspot.com

027 Denah Instalasi Listrik Dan AC Lantai 2 Desain Rumah Sumber : kursusprivatautocad.com

Instalasi listrik rumah Sumber : www.slideshare.net

Ichsan025104 Pemasangan Instalasi Listrik Rumah Tinggal Sumber : ichsandi.blogspot.com

11 perencanaan instalasi listrik rumah bertingkat Sumber : www.slideshare.net
perencanaan instalasi listrik rumah 2 lantai, gambar instalasi listrik rumah tinggal, perencanaan instalasi listrik gedung bertingkat, cara instalasi listrik rumah beton, gambar denah instalasi listrik rumah tinggal, instalasi listrik rumah mewah, diagram pengawatan instalasi listrik rumah, perencanaan instalasi listrik gedung bertingkat pdf,
Populer 12 Gambar Instalasi Rumah Tingkat 2 Paling Modern Dan Nyaman, Skema Listrik. Begitu banyak informasi yang perlu diketahui sebelum melakukan skema listrik di rumah, mulai dari jenis, fungsi, sampai jaringan. ada tiga model skema listrik yang bisa dipakai sebagai dasar instalasi. Simak ulasan terkait skema listrik dengan artikel Populer 12 Gambar Instalasi Rumah Tingkat 2 Paling Modern Dan Nyaman, Skema Listrik berikut ini

Perhatikan Pembuatan Denah Instalasi Listrik Rumah Yang Aman Sumber : saibot-blog.blogspot.com
Gambar Kerja Bistek Rumah Tinggal Minimalis 2 Lantai
Gambar Kerja Bistek Rumah Tinggal Minimalis 2 Lantai gambar kerja rumah 1 lantai gambar kerja rumah type 60 gambar kerja rumah pdf gambar kerja lengkap rumah minimalis gambar kerja rumah type 36 pdf gambar kerja rumah type 45 download gambar kerja rumah type 36 bestek rumah tinggal download 023 Denah Instalasi Air Kotor Lantai 2 024

Gambar Instalasi Rumah Tingkat Blog Images Sumber : blogimagesxyz.blogspot.com
15 Gambar Rumah Minimalis Modern 2 Lantai Terindah
Di perkotaan lahan tanah sangatlah mahal Untuk membeli tanah ukuran permeter saja bisa harus mengeluarkan uang yang cukup banyak Jika anda sudah memiliki lahan namun ingin maksimal sebaiknya melihat coba gambar rumah minimalis modern 2 lantai Dengan hunian berlantai tingkat 2 kebutuhan akan ruang akan tercukupi

MENGGAMBAR RANCANGAN INSTALASI LISTRIK UNTUK RUMAH 2 Sumber : stc-overshare.blogspot.com
Perencanaan Instalasi Listrik Rumah Bertingkat Dua Lantai
Gambar Instalasi Rumah Lantai 2 Dengan adanya gambar instalasi seperti diatas kita dapat mengetahui letak titik titik peralatan listrik baik itu lampu ataupun kotak kontak pada rumah sesuai dengan pembagian grupnya Selain itu kita juga dapat mengetahui semua lampu dan pengendalinya saklar beserta jalur jalur pemasangan kabel dan berapa

MENGGAMBAR RANCANGAN INSTALASI LISTRIK UNTUK RUMAH 2 Sumber : stc-overshare.blogspot.com
Kumpulan Gambar Rumah Gambar Instalasi Rumah
03 05 2020 gambar instalasi rumah design 2 lantai banguncom contoh design 2 lantai denah pipa dan plumbing denah titik lampu detail septictank dan resapan site plan detail kuda kuda atap gambar rumah tingkat 2 senin agustus 011 denah minimalis lantai desain desain minimalis denah renovasi minimalis idaman type 36 Ruko Minimalis

Plan Rumah 2 Tingkat Desainrumahid com Sumber : desainrumahid.com
LENGKAP Gambar Kerja Bistek Rumah Tinggal 2 Lantai
LENGKAP Gambar Kerja Bistek Rumah Tinggal 2 Lantai LENGKAP Gambar Kerja Bistek Rumah Tinggal 2 Lantai Berikut ini merupakan arsip gambar kerja rumah tinggal 2 lantai yang telah selesai dikerjakan perencanaannya dan bahkan sudah selesai dibangun salah satu karya dari tim indo design center sebagai penyedia jasa desain rumah terbaik dan terpercaya
perencanaan instalasi listrik rumah 2 lantai, gambar instalasi listrik rumah tinggal, perencanaan instalasi listrik gedung bertingkat, cara instalasi listrik rumah beton, gambar denah instalasi listrik rumah tinggal, instalasi listrik rumah mewah, diagram pengawatan instalasi listrik rumah, perencanaan instalasi listrik gedung bertingkat pdf,

Gambar Denah Rumah Dengan Visio Gontoh Sumber : gontoh.blogspot.com
GAMBAR INSTALASI LISTRIK RUMAH TINGGAL Cerita Kita
16 02 2020 GAMBAR INSTALASI LISTRIK RUMAH TINGGAL 1 PENGANTAR Gambar 2 memperlihatkan diagram garis ganda untuk sebuah sakelar kutub satu dengan satu titik lampu Gambar 2 Diagram garis ganda Gambar 3 memperlihatkan rangkaian yang sama dalam bentuk diagram garis tunggal Dalam diagram garis tunggal penghantar penghantar yang sejenis digambar dengan

Instalasi Rumah Lantai 2 Fiqri opinion Sumber : kitacirebon.blogspot.com
Desain rumah tingkat Jasa Desain Rumah Jakarta Jasa
Desain rumah tingkat Anda tentu sering mendengar pendapat bahwa desain minimalis berarti less is more dan pendapat yang berbeda adalah ketika ungkapan itu diartikan lebih murah adalah lebih baik Apabila diaplikasikan pada desain rumah minimalis 2 lantai modern teori tersebut bukan berarti tentang pengeluaran yang lebih sedikit Namun mewujudkan desain yang lebih baik melalui
Denah Rumah 2 Lantai Hook 2020 Sumber : modelrumahmewah2017.blogspot.com
Gambar 027 Denah Instalasi Listrik Dan AC Lantai 2 dwg
Gambar 027 Denah Instalasi Listrik Dan AC Lantai 2 dwg Tag Gambar kerja hotel dwg Download bestek rumah 2 lantai dwg Autocad dwg files free download Kumpulan file dwg gratis File dwg download gratis Download denah rumah autocad 2020 Download gambar kerja rumah type 36 Download gambar kerja dwg Download gambar kerja dwg Download denah rumah lengkap dwg Dwg download library Rumah

Instalasi Rumah Lantai 2 Fiqri opinion Sumber : kitacirebon.blogspot.com
instalasi listrik rumah dua lantai Desain Rumah Rumah
kedua gambar denah ini menggambarkan denah rumah tingkat dua lantai bagian lantai dasar terlihat dari gambar denah diatas sudah diberikan ukuran dan pembagian ruangan untuk rumah dua lantai ini tetapi pokok inti permasalahan kali ini bukanlah desain rumahnya tetapi bagaimana cara instalasi listrik yang ada dirumah dua lantai ini dilantai bawah pada gambar denah rumah dibawah ini

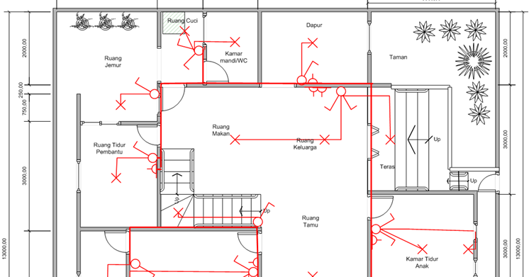
Gambar Instalasi Rumah 2 Tingkat Rumamu di Sumber : rumamudi.blogspot.com
Instalasi Listrik Rumah Bertingkat Rumahmu
Gambar denah ini menggambarkan sketsa jalur listrik untuk rumah tingkat dua lantai bagian lantai dasar Dapat dilihat dari gambar denah diatas yang sudah diberikan ukuran dan pembagian untuk ruangan rumah dua lantai Akan tetapi inti pembahasan kali ini bukanlah desain rumahnya namun bagaimana jalur instalasi listrik untuk rumah dua lantai

Gambar Instalasi Rumah 2 Tingkat Rumamu di Sumber : rumamudi.blogspot.com

027 Denah Instalasi Listrik Dan AC Lantai 2 Desain Rumah Sumber : kursusprivatautocad.com

Instalasi listrik rumah Sumber : www.slideshare.net

Ichsan025104 Pemasangan Instalasi Listrik Rumah Tinggal Sumber : ichsandi.blogspot.com

11 perencanaan instalasi listrik rumah bertingkat Sumber : www.slideshare.net
0 Comments